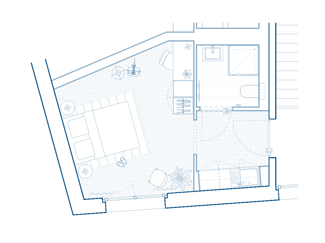
La Pommière

Logements pour jeunes en formation

Fiche détailléeDescription

Décembre 2019 Début des études
Juillet 2022 Autorisation en force
Octobre 2023 Ouverture de chantier
Décembre 2024 Livraison

Conches